略過產品資訊
1 / 6

SyncoBox BIM工作流程解決方案 - 建築工具組

面積自動分割出圖工具組

面積自動分割出圖工具組

BIM工作流程系列產品自2025/7/1起僅提供舊客戶、合作夥伴、策略夥伴訂閱。請聯絡我們以取得折扣代碼,請勿直接下單。

VIP客戶特價:$3,120 TWD

以上價格未含稅

訂閱方案

*下單後會由專人聯繫協助啟用產品

*本訂閱自啟用日起開始計算固定期限,下單數量代表使用者人數。

*此處展示的產品截圖及影片不一定為最新版本。

*本產品提供線上操作手冊及問題回報,若須額外支援或教育訓練服務可另行報價。

*下單前請再次確認產品功能符合您的需求。

*於此處下單代表您同意我們的服務條款及隱私政策。

*針對工作流程的時間預估為衛武內部評估參考指標,根據不同專案類型、操作熟練度及電腦效能會有所差異。

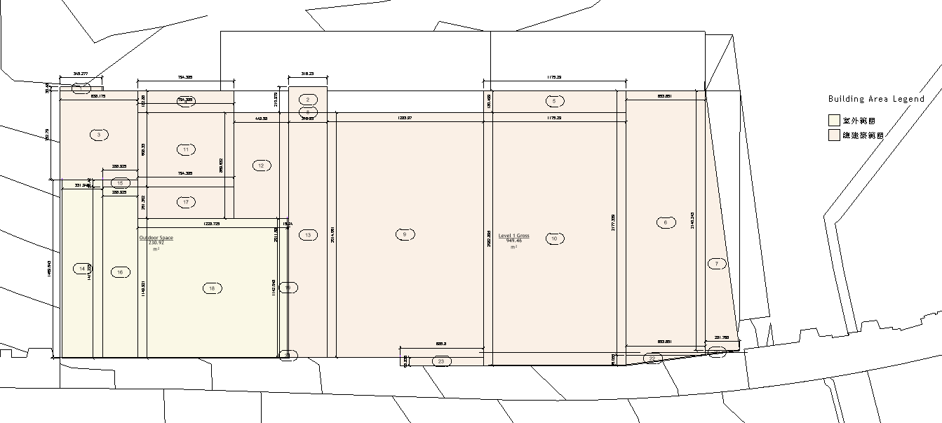
自動分割與生成計算式

即使是大面積或複雜造型專案,也能自動化分割、生成計算式與標註,將原本耗時數天的手動作業縮短至15分鐘內,完成原本不易以BIM模型執行的執照出圖作業。

準確且可核對

透過自動化處理複雜造型,確保面積計算的準確性,並提供核對機制,讓BIM工程師與建築師能夠輕鬆覆核成果。

迅速反應設計變更

設計變更後,可快速更新執照圖說,減少人工作業延遲造成的資訊不同步,為專案團隊節省寶貴時間。

自動分割與標註

自動將法規面積範圍切分為可計算分區,並自動編號與標註尺寸,無需手動畫線,提升效率並減少錯誤。

自動計算式生成

自動產生計算式,確保計算結果的準確性,並便於核對與Revit原始數據,提升BIM工程師的工作效率。

批次處理功能

支援多樓層批次處理,一次完成整個專案的面積分割,提高整體專案效率。

詳圖生成

對於面積較小的分區,支援生成大比例詳圖,單獨標註,確保每一分區都清晰可見。

明細表匯整

計算式及編號資訊參數化,可利用明細表彙整,滿足各種專案出圖及應用需求。

  • 產品規格
  • 此工具組之功能設計針對已完成法規檢討後,節省於出圖階段的大量人工作業
  • 支援的語系:繁體中文
  • 支援的Revit版本:2022~2026
  • 一套授權對應一位使用者於一台工作站上使用為限
  • 支援的作業系統版本:Windows 10、Windows 11 (詳細支援子版本依據Microsoft支援週期,建議透過Windows Update更新至最新版本)

執行本產品需要網際網路連線連線至SyncoBox及有效的SyncoBox使用者帳號

查看完整資訊