1
/
/
4
SyncoBox BIM工作流程解決方案 - 建築工具組
圖說空間資訊檢核工具組
圖說空間資訊檢核工具組
BIM工作流程系列產品自2025/7/1起僅提供舊客戶、合作夥伴、策略夥伴訂閱。請聯絡我們以取得折扣代碼,請勿直接下單。
VIP客戶特價:$1,520 TWD
以上價格未含稅
無法載入取貨服務供應情況
*下單後會由專人聯繫協助啟用產品
*本訂閱自啟用日起開始計算固定期限,下單數量代表使用者人數。
*此處展示的產品截圖及影片不一定為最新版本。
*本產品提供線上操作手冊及問題回報,若須額外支援或教育訓練服務可另行報價。
*下單前請再次確認產品功能符合您的需求。
*於此處下單代表您同意我們的服務條款及隱私政策。
*針對工作流程的時間預估為衛武內部評估參考指標,根據不同專案類型、操作熟練度及電腦效能會有所差異。
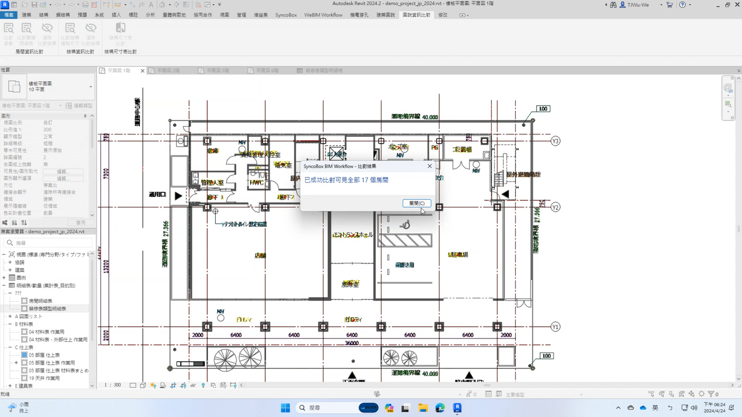
確保房間圖模一致
確保房間圖模一致
即使是與未完全導入BIM的團隊協作時,協助BIM工程師在2分鐘內完成房間資訊核對及參數填入,且能減少人為錯誤,輕鬆確保圖說與模型的一致性。
核對流程簡化
核對流程簡化
簡化傳統繁瑣的模型與2D圖說資訊核對流程,協助BIM團隊主管建立團隊SOP,並提升整體工作效率。
視覺化比對
視覺化比對
透過圖形化結果呈現模型與圖說比對結果,讓BIM工程師能夠輕鬆覆核。
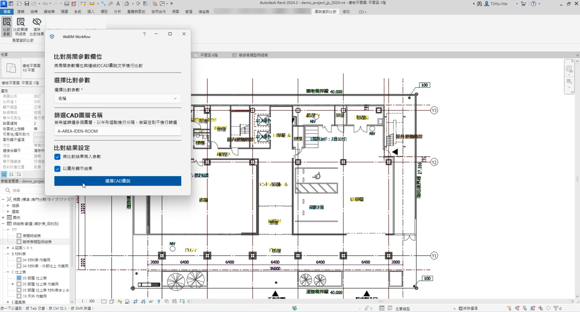
CAD圖說比對
自動比對CAD圖說文字與BIM模型房間資訊,如房間名稱、編號及自定義參數欄位,提高準確性與效率。
關鍵明細表支援
搭配關鍵明細表,快速填入裝修明細表,簡化工作流程且確保正確性。
無需清圖比對
匯入或連結CAD圖說至Revit模型後,無需清圖即可進行比對,節省大量時間。
視覺化呈現
以視覺化方式呈現模型與圖說比對結果,提升覆核效率。
- 產品規格
- 支援的CAD圖說格式:dwg、dxf
- 支援的語系:繁體中文
- 支援的Revit版本:2022~2026
- 一套授權對應一位使用者於一台工作站上使用為限
- 支援的作業系統版本:Windows 10、Windows 11 (詳細支援子版本依據Microsoft支援週期,建議透過Windows Update更新至最新版本)
- 執行本產品需要網際網路連線連線至SyncoBox及有效的SyncoBox使用者帳號
Share
